
Cover Page: The Cover Page provides a clear overview of your project, featuring a complete drawing index, contact information, standard abbreviations, and a location map for quick reference. A featured 3D rendering offers a visual introduction to the design, ensuring you begin the plan set with a comprehensive snapshot of everything ahead.

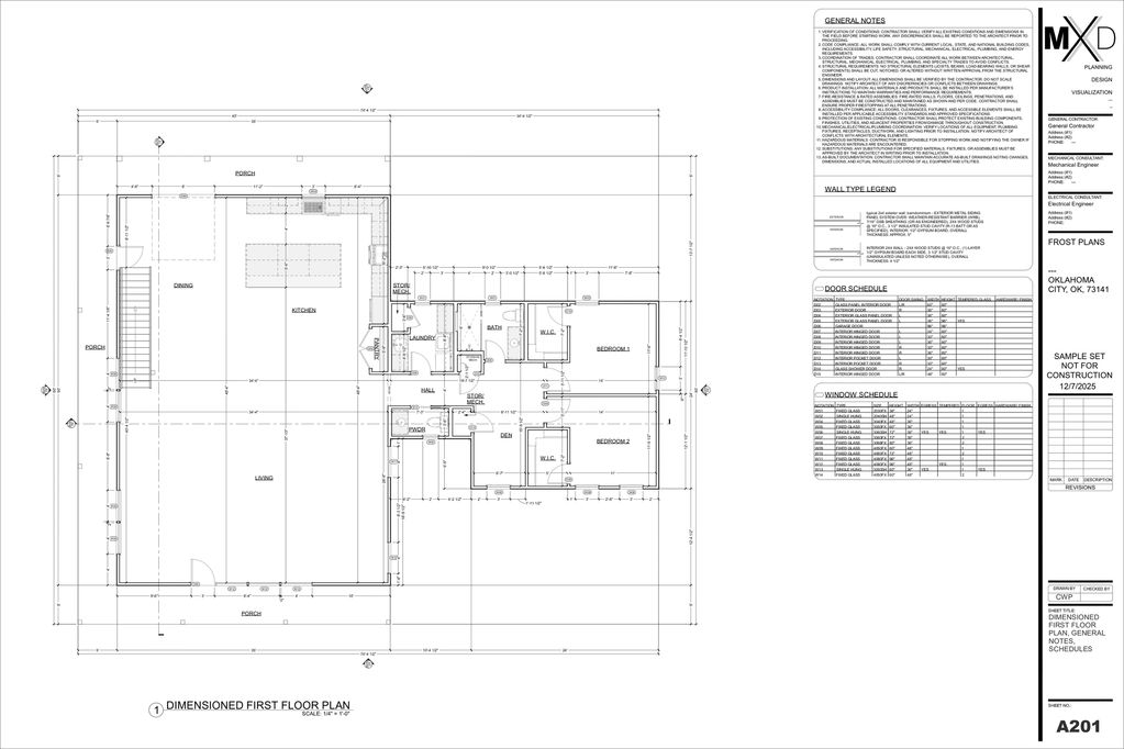
Floor Plans: The Floor Plans page presents a fully dimensioned layout of the home, supported by essential general notes, a detailed wall type legend, and relevant schedules. This section provides a clear, organized view of the design, ensuring accurate coordination and understanding of the project’s key components.

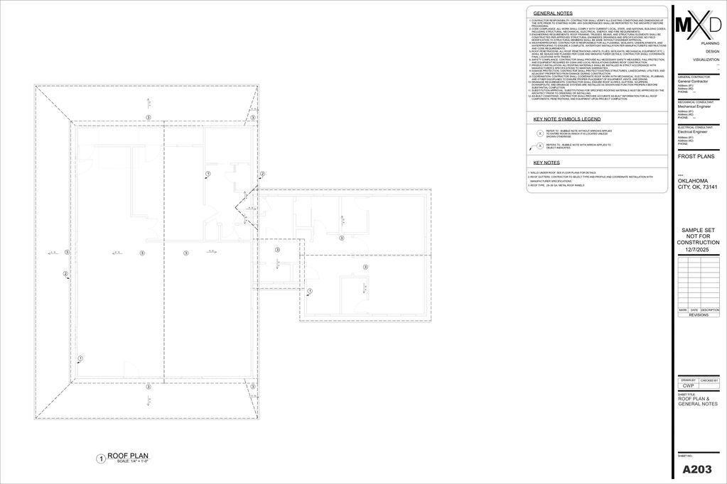
Roof Plan: The Roof Plans page provides a fully dimensioned layout of the roof along with essential general notes. This section offers a clear and organized view of the roof design to guide construction and ensure accuracy.

Electrical Takeoff: The Electrical Plans page includes a fully dimensioned First Floor electrical take-off, general notes, and a legend for all symbols and fixtures. This section provides a clear guide for electrical layout and coordination throughout the project.

Exterior Elevations: The Exterior Elevations page presents detailed rear and right-side views of the building, accompanied by general notes. This section highlights the design’s exterior appearance and key architectural features for accurate construction and visualization.

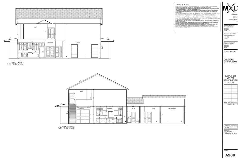
Sections: The Sections page provides detailed vertical views of the project, illustrating key relationships between floors, walls, and structural elements. Included general notes offer important guidance to ensure clarity and accuracy during construction.
We use cookies to analyze website traffic and optimize your website experience. By accepting our use of cookies, your data will be aggregated with all other user data.